6 500 000 Р 83 090 $ или 70 580

Информация о коттедже

140 м2
Площадь
1
Этажность
6 cоток
Участок

Дополнительная информация

Дом продаётся вместе с участком
есть
Развернуть
Агент
+7 (981) 868-06-90
Начать чат с агентом

Дом в Липецкая область, Задонск ул. Добровольского, 1 (140 м)

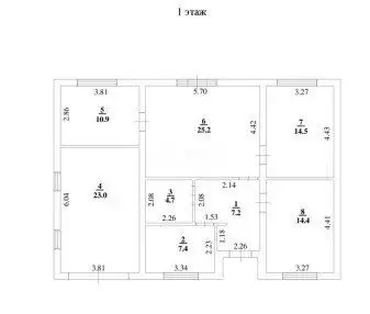
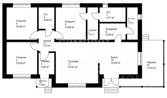
Если вы ищите дом рядом с лесом с максимальной удаленностью от соседей - тогда это ваш идеальный вариант Продам кирпичный дом в Задонске по улице Добровольского дом 1.. Окна выходят на 3 стороны - восток, юг, запад - всегда светло Уникальное месторасположение - рядом с лесом, широкая улица, угловой дом - ощущение уединенности и тишины вам гарантировано Асфальт практически до домаУдобная планировка - 3 отдельные спальни, гостиная 28 кВ.м., кухня 15 кВ.м, ванна 6 кВ.м. Есть летняя кухня 13 кв.м.., где расположено АОГВ и газовая плита дополнительно - идеальное место для консервации и коридор между гаражом и летней кухней.Гараж с выходом в дом.Полностью кирпичный, засыпан внутри керамзитом для дополнительной теплоизоляции - летом всегда прохладно, зимой тепло.Косметический ремонт. Стеклопакеты, кафель в санузле, деревянные двери.Пол - лиственница, крепкий.Крыша в хорошем состоянии. Есть чердак.На участке расположен сарай с сухим погребом ( цельносварная железная конструкция) и кирпичная теплица.До остановки общественного транспорта 5 минут ходьбы.В шаговой доступности современный Северный парк, сельхоз колледж, школа, магазины.1 взрослый собственник.Рассмотрим обмен на квартиру или дом меньшей площади в Задонске, Липецке или Воронеже.Звоните, покажем в удобное для вас время

Читать полностью

    Для того, чтобы купить 1-этажный коттедж по адресу: Задонск, ул. Добровольского, 1, позвоните по телефону +7 (981) 868-06-90. Торопитесь! Объявление №50014996610 о продаже одноэтажного коттеджа опубликовано 2 дня назад.

    Позвонить Написать
    6 500 000 Р83 090 $ или 70 580
    Агент
    +7 (981) 868-06-90
    Начать чат с агентом
    Похожие предложения
    Дом в село Замятино, улица Арбузовка (246 м) - Фото 1
    Дом в село Замятино, улица Арбузовка (246 м) - Фото 2
    2 этажа, общая площадь 246м², участок 30 соток

    Эта усадьба для тех, кто давно мечтал поселиться в собственном доме на берегу реки, на большом участке с великолепными видами. Проводить вечера у камина, дышать чистым воздухом, наслаждаться тишиной и комфортом, играть с детьми на своем дворе. О месте,...
    • 2 эт.
    • 246 м²
    • 30 сот.
    6 500 000 Р
    Агент
    +7 (919) Показать номер
    Посмотреть контакты
    Коттедж в Липецкая область, Задонский район, Ксизовский сельсовет, с. ... - Фото 1
    Коттедж в Липецкая область, Задонский район, Ксизовский сельсовет, с. ... - Фото 2
    2 этажа, общая площадь 246м², участок 30 соток

    Эта усадьба для тех, кто давно мечтал поселиться в собственном доме на берегу реки, на большом участке с великолепным видом на реку. Проводить вечера у камина, дышать чистым воздухом, наслаждаться тишиной и комфортом, играть с детьми на своем дворе. О...
    • 2 эт.
    • 246 м²
    • 30 сот.
    6 500 000 Р
    Агент
    +7 (915) Показать номер
    Посмотреть контакты
    Коттедж в Липецкая область, Липецк ул. Колокольная, 40 (105 м) - Фото 1
    Коттедж в Липецкая область, Липецк ул. Колокольная, 40 (105 м) - Фото 2
    1 этаж, общая площадь 105м², участок 10 соток

    Арт.. ПРОДАЁТСЯ ГОТОВЫЙ ДОМ 105 м в с. СсёлкиПодходит под СЕМЕЙНУЮ ипотеку Новый, тёплый и надёжный дом в экологически чистом районе О доме:- Современное строительство с упором на качество и долговечность- Стены: газосиликатные блоки Hebel 300 мм +...
    • 1 эт.
    • 105 м²
    • 10 сот.
    6 600 000 Р
    Агент
    +7 (915) Показать номер
    Посмотреть контакты
    Коттедж в Липецкая область, Грязинский район, Фащевский сельсовет, с. ... - Фото 1
    Коттедж в Липецкая область, Грязинский район, Фащевский сельсовет, с. ... - Фото 2
    1 этаж, общая площадь 111м², участок 20 соток

    Арт.Продается коттедж общей площадью 95,37 м2, площадь с учетом помещений 111,87 м2. Планировка включает : 3 спальни, большая кухня-гостиная с выходом на террасу, коридор, 2 санузла. Фундамент свайно-ростверковый.Стены 300 наружные, Внутренние перегородки...
    • 1 эт.
    • 111 м²
    • 20 сот.
    6 500 000 Р
    Агент
    +7 (919) Показать номер
    Посмотреть контакты
    Дом в Липецкая область, Добровский муниципальный округ, с. Большой ... - Фото 1
    Дом в Липецкая область, Добровский муниципальный округ, с. Большой ... - Фото 2
    2 этажа, общая площадь 129м², участок 12 соток

    Арт.В продаже отличный двухэтажный дом 130 м2 на участке 12 соток в шикарном месте у леса.Дом новой постройки от физлица. Дом расположен в с.Большой хомутец, где есть и пруд и лес и развитая инфраструктура. В селе есть школа, детский сад, продуктовые...
    • 2 эт.
    • 129 м²
    • 12 сот.
    6 400 000 Р
    Агент
    +7 (919) Показать номер
    Посмотреть контакты

    Не нашли подходящего объявления?

    Оставьте заявку, и наши риэлторы подберут купить дом в районе Задонска

    (0)