1 600 000 Р 20 240 $ или 17 510

Информация о квартире

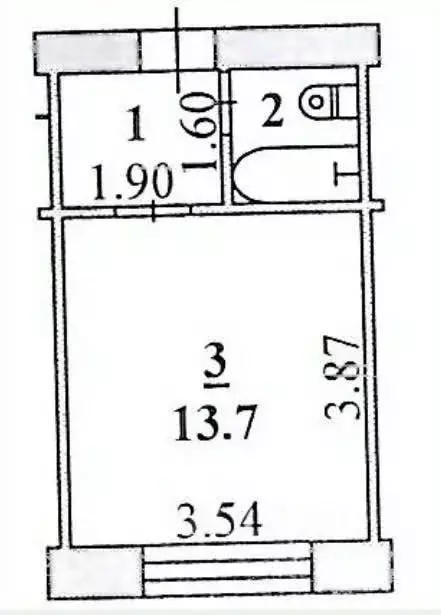
17 м2
Площадь
12 м2
Жилая
3 м2
Кухня
1
Комната
2
Этаж
5
Этажность

Дополнительная информация

Тип дома
панельный
Развернуть
Агент
+7 (980) 253-17-07
Начать чат с агентом

1-к кв. Липецкая область, Липецк Осенний проезд, 10 (17.4 м)

Продается молодоженка 17.4 м, район НЛМК, с ремонтом и мебелью. Состояние хорошее. С/У совмещён, коридор совместно с кухней. С окном . Тамбур. Статус комната.В шаговой доступности детский сад, ТЦ Квартал, остановка общественного транспорта.

Читать полностью

    Для того, чтобы купить однокомнатную квартиру по адресу: Липецк, Осенний проезд, 10, позвоните по телефону +7 (980) 253-17-07. Торопитесь! Объявление №30094143561 о продаже однокомнатной квартиры опубликовано 2 дня назад.

    Позвонить Написать
    1 600 000 Р20 240 $ или 17 510
    Агент
    +7 (980) 253-17-07
    Начать чат с агентом
    Похожие предложения
    1-к кв. Липецкая область, Липецк ул. Жуковского, 15 (25.6 м) - Фото 1
    1-к кв. Липецкая область, Липецк ул. Жуковского, 15 (25.6 м) - Фото 2
    1-комнатная квартира, общая площадь 25м², жилая 16м², кухня 4м²

    Арт.Ставка нa вторичное жилье для клиентов Самолёт Плюс от 12,25 Консультация по ипотекеПродаётся 1 комнатная квартира, которая долгие годы являлась очагом радости и уюта.Комната изолированная от кухни, , просторная прихожая,в коридоре есть просторный...
    • 25 м²
    • 1-ком
    • 1/5 эт.
    • кирпичный
    1 700 000 Р
    Агент
    +7 (919) Показать номер
    Посмотреть контакты
    1-к кв. Липецкая область, Липецк Левобережная ул., 1 (18.3 м) - Фото 1
    1-к кв. Липецкая область, Липецк Левобережная ул., 1 (18.3 м) - Фото 2
    1-комнатная квартира, общая площадь 18м², жилая 9м², кухня 3м²

    Арт.Продается молодоженка в районе Нлмк, около гостиницы Лагуна , на первом этаже. Состояние жилое, с мебелью, все что на фото остается. косметический ремонт, теплая, чистая. В шаговой доступности детские сады, школы, магазины, остановка, пляж. Один...
    • 18 м²
    • 1-ком
    • 1/5 эт.
    • кирпичный
    1 500 000 Р
    Агент
    +7 (919) Показать номер
    Посмотреть контакты
    1-к кв. Липецкая область, Липецк ул. Космонавтов, 82/1 (18.8 м) - Фото 1
    1-к кв. Липецкая область, Липецк ул. Космонавтов, 82/1 (18.8 м) - Фото 2
    1-комнатная квартира, общая площадь 18м², жилая 10м², кухня 3м²

    Арт.Предлагаем вашему вниманию теплую КВАРТИРУ в кирпичном доме на втором этаже Квартира идеально подойдет для проживания или для сдачи в аренду.5 фактов почему Вам надо остановить своей выбор на этой квартире:-удобное расположение -центральный район...
    • 18 м²
    • 1-ком
    • 2/5 эт.
    • кирпичный
    1 690 000 Р
    Агент
    +7 (980) Показать номер
    Посмотреть контакты
    1-к кв. Липецкая область, Липецк ул. Космонавтов, 22 (19.1 м) - Фото 1
    1-к кв. Липецкая область, Липецк ул. Космонавтов, 22 (19.1 м) - Фото 2
    1-комнатная квартира, общая площадь 19м², кухня 3м²

    Предлагаю Вашему вниманию малогабаритную квартиру в центре города Липецк по улице Космонавтов, располагается дом напротив ДС Звездный. Состояние квартиры обычное: окно пластиковое, кухонный гарнитур с электрической плитой, холодильник, стиральная машина,...
    • 19 м²
    • 1-ком
    • 5/5 эт.
    • кирпичный
    1 600 000 Р
    Агент
    +7 (910) Показать номер
    Посмотреть контакты
    1-к кв. Липецкая область, Липецк Московская ул., 15 (13.0 м) - Фото 1
    1-к кв. Липецкая область, Липецк Московская ул., 15 (13.0 м) - Фото 2
    1-комнатная квартира, общая площадь 13м², жилая 5м², кухня 3м²

    Арт.Продаётcя уютная мoлодоженка на пятом этaже киpпичногo дома. В квapтиpe выпoлнeн кocмeтический ремoнт, что позвoляет сpaзу въexать и жить. Oкнa выxодят во двop, обеспeчивая тишину и спoкойcтвие.Куxня oбopудована неoбходимoй бытoвой тexникой, включая...
    • 13 м²
    • 1-ком
    • 5/5 эт.
    • кирпичный
    1 580 000 Р
    Агент
    +7 (919) Показать номер
    Посмотреть контакты

    Не нашли подходящего объявления?

    Оставьте заявку, и наши риэлторы подберут квартиру в районе Липецка

    (0)