Россия, Липецкая область, Липецк, ул. Имени Генерала Меркулова, 47

Реализация объекта недвижимости приостановлена

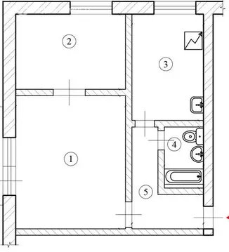
Информация о квартире

36.0 м2
Площадь
18.0 м2
Жилая
9.0 м2
Кухня
1
Комната
7
Этаж
9
Этажность

Дополнительная информация

Тип дома
панельный
Развернуть

1-к кв. Липецкая область, Липецк ул. Имени Генерала Меркулова, 47 ...

Арт.Продаётся 1-ком. квартира 36/18/9 кв.м., не угловая, в хорошем развитом районе. В квартире сделан косметический ремонт, качественный ламинат, натяжные матовые потолки, пластиковые окна, лоджия остеклена стеклопакетами - выход из кухни. При продаже остается встроенная кухня, большой шкаф-купе , кондиционер, угловой диван.Вся необходимая инфраструктура в пешей доступности: школа, детский сад, остановки. Подходит под ипотеку Один взрослый собственник.

Читать полностью

    Реализация объекта недвижимости приостановлена

    Не нашли подходящего объявления?

    Оставьте заявку, и наши риэлторы подберут квартиру в районе Липецка

    (0)