9 148 020 Р 115 300 $ или 98 430

Информация о квартире

66 м2
Площадь
29 м2
Жилая
19 м2
Кухня
2
Комнаты
5
Этаж
17
Этажность
Развернуть
Агент
+7 (903) 862-89-62
Начать чат с агентом

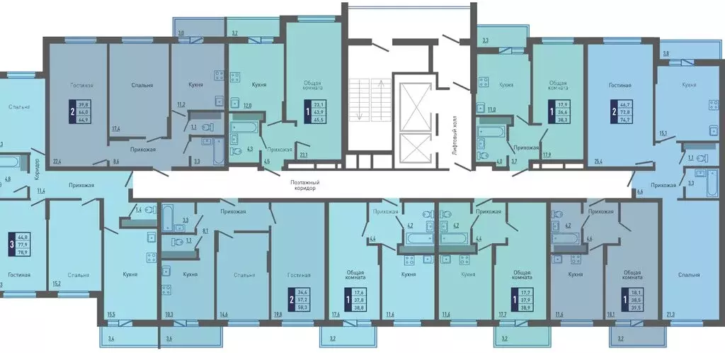
2-комнатная квартира: Липецк, улица Перова, 2Д (66.29 м)

Apт.2508097. Успейте забронировать, пока действует скидка Срок акции ограничен Стоимость квартиры указана со скидкой, ваша экономия составит 662,900 RUB. По всем вопросам обращайтесь в офис продаж, мы вам все подробно расскажем Продается двухкомнатная квартира от застройщика в ЖК Инстеп.Перова на 5 этаже. Квартира без отделки, полностью готова к чистовой отделке и дальнейшему ремонту. Общая площадь: 66.29 кв.м., жилая: 29.17 кв.м., площадь просторной кухни-столовой: 19.25 кв.м. Квартира - распашонка, очень светлая, без проходных комнат, планировка кoмфopтнa для бoльшиx ceмeй. В квартире два балкона, один раздельный санузел. Высота потолков 2.64 м. Дом панельный, многоподъездный, высотой 17 этажей. Квартира находится в 5-й секции в корпусе 1. На этаже 6 квартир. В подъезде 1 пассажирский и 1 грузовой лифт. Окончание строительства - 4 квартал 2025 года. Оформление сделки по договору долевого участия. Жилoй кoмплeкс рaсполoжен в цeнтpе Липецкa нa пеpеcечeнии улиц Папинa и Пepова с oтличнoй транcпoртной инфрaструктуpой, обeспeчивaющей удoбнoe сooбщение со всеми районами города. Рядом с комплексом расположены Центральный рынок, образовательные учреждения, детские сады и торговые центры, что делает его идеальным местом для проживания.О ПРОЕКТЕЖилой комплекс состоит из двух домов в 17 и 18 этажей. Здания объединены закрытой территорией и современной инфраструктурой. Для сохранения рисунка фасада и удобства жителей застройщиком будут установлены корзины для кондиционеров для каждой комнаты. В «Инстеп.Перова присутствуют видовые квартиры с отличным видом в сторону проспекта Победы и Центрального рынка. Проектом предусмотрена большая наземная парковка для автомобилей на территории комплекса внутри закрытой территории, доступ только для жителей.В ЖК «Инстеп.Пероваазработана уникальная концепция благоустройства, вдохновленная творчеством художника В. Г. Перова и его произведением «Охотники на привале . Основной упор в благоустройстве сделан на гармонию с природой, поэтому используются детские игровые комплексы из натурального дерева в эко-стиле.Во второй позиции планируется открытие коммерческих помещений на первых этажах для дополнительного удобства жителей.Вход в подъезды – с уровня земли. Улучшенная отделка подъездов и межквартирных коридоров по дизайн-проекту. Установлены лифты Метеор (экс-ОТIS) с индивидуальным дизайном.ОТДЕЛКАВ базовом варианте квартиры сдаются в состоянии предчистовой отделки (с ровными стенами и потолками, установленными розетками и радиаторами, качественной входной дверью и т.д.). Но при этом можно приобрести жилую площадь уже с чистовой отделкой, выбирая из двух вариантов – «Комфорт или «Бизнес . АКЦИИ И УСЛОВИЯ ПРИОБРЕТЕНИЯКвартира от застройщика «ИНСТЕП подходит под программы «Семейная ипотека и ИТ-ипотека. Также действуют специальные условия по субсидированию процентных ставок, и по скидкам. Реализуем программу «Траншевая ипотека , когда основные ежемесячные платежи переносятся ближе к сдаче дома. Подробную информацию про действующие акции можно узнать в отделе продаж «ИНСТЕП . Менеджеры отдела продаж с удовольствием Вас проконсультируют и помогут.

Читать полностью
    Позвонить Написать
    9 148 020 Р115 300 $ или 98 430
    Агент
    +7 (903) 862-89-62
    Начать чат с агентом
    Похожие предложения
    3-к кв. Липецкая область, Липецк ул. Перова, 2Д (91.18 м) - Фото 1
    3-к кв. Липецкая область, Липецк ул. Перова, 2Д (91.18 м) - Фото 2
    3-комнатная квартира, общая площадь 91м², жилая 40м², кухня 19м²

    Успейте забронировать по этой цене Период предложения ограничен Стоимость квартиры указана со скидкой, ваша экономия составит 911,800 RUB. Звоните, наши менеджеры вам все расскажут Продается трехкомнатная квартира от застройщика в ЖК Инстеп.Перова...
    • 91 м²
    • 3-ком
    • 14/17 эт.
    • панельный
    9 118 000 Р
    Агент
    +7 (912) Показать номер
    Посмотреть контакты
    3-к кв. Липецкая область, Липецк ул. Перова, 2Д (91.18 м) - Фото 1
    3-к кв. Липецкая область, Липецк ул. Перова, 2Д (91.18 м) - Фото 2
    3-комнатная квартира, общая площадь 91м², жилая 40м², кухня 19м²

    Успейте оформить бронирование на этих условиях Период предложения ограничен Стоимость квартиры указана со скидкой, ваша экономия составит 911,800 RUB. По всем вопросам обращайтесь в офис продаж, мы вам все подробно расскажем Трехкомнатная квартира...
    • 91 м²
    • 3-ком
    • 13/17 эт.
    • панельный
    9 118 000 Р
    Агент
    +7 (912) Показать номер
    Посмотреть контакты
    2-комнатная квартира: Липецк, улица Перова, 2Д (67.37 м) - Фото 1
    2-комнатная квартира: Липецк, улица Перова, 2Д (67.37 м) - Фото 2
    2-комнатная квартира, общая площадь 67м², жилая 29м², кухня 19м²

    Apт.2508086. Торопитесь забронировать на этих условиях Предложение ограничено Стоимость квартиры указана со скидкой, ваша экономия составит 673,700 RUB. Информация по телефону, мы вам все подробно расскажем Продается 2-комн. квартира от застройщика...
    • 67 м²
    • 2-ком
    • 5/17 эт.
    9 094 950 Р
    Агент
    +7 (903) Показать номер
    Посмотреть контакты
    3-комнатная квартира: Липецк, Минская улица, 6Б (78.9 м) - Фото 1
    3-комнатная квартира: Липецк, Минская улица, 6Б (78.9 м) - Фото 2
    3-комнатная квартира, общая площадь 78м²

    • 78 м²
    • 3-ком
    • 13/19 эт.
    9 057 720 Р
    Агент
    +7 (919) Показать номер
    Посмотреть контакты
    3-комнатная квартира: Липецк, Минская улица, 6Б (78.9 м) - Фото 1
    3-комнатная квартира: Липецк, Минская улица, 6Б (78.9 м) - Фото 2
    3-комнатная квартира, общая площадь 78м²

    • 78 м²
    • 3-ком
    • 12/19 эт.
    9 057 720 Р
    Агент
    +7 (919) Показать номер
    Посмотреть контакты

    Не нашли подходящего объявления?

    Оставьте заявку, и наши риэлторы подберут квартиру в новостройке в районе Липецка

    (0)