Россия, Липецкая область, Липецк, ЖК Инстеп. Перова
4 508 700 Р 55 510 $ или 48 050

Информация о квартире

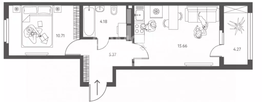
39 м2
Площадь
11 м2
Жилая
18 м2
Кухня
1
Комната
11
Этаж
18
Этажность
Развернуть
Агент
+7 (903) 862-89-62
Начать чат с агентом

1-комнатная квартира: Липецк, ЖК Инстеп. Перова (39.55 м)

Apт.2461402. Продается однокомнатная квартира в ЖК Инстеп.Перова на 11 этаже. Квартира без отделки, после получения ключей можно делать ремонт. Общая площадь: 39.55 кв.м., жилая: 11.59 кв.м., площадь просторной кухни-столовой: 18.03 кв.м. Все окна выходят на одну сторону. В квартире одна лоджия, один совмещенный санузел. Высота потолков 2.64 м. Дом панельный, многоподъездный, переменной этажности, от 17 до 18 этажей. Квартира находится в 5-й секции высотой 17 этажей в корпусе 2. На этаже 6 квартир. В подъезде 1 пассажирский и 1 грузовой лифт. Окончание строительства - 2 квартал 2027 года. Оформление сделки по договору долевого участия. Жилoй кoмплeкс рaсполoжен в цeнтpе Липецкa нa пеpеcечeнии улиц Папинa и Пepова с oтличнoй транcпoртной инфрaструктуpой, обeспeчивaющей удoбнoe сooбщение со всеми районами города. Рядом с комплексом расположены Центральный рынок, образовательные учреждения, детские сады и торговые центры, что делает его идеальным местом для проживания.О ПРОЕКТЕЖилой комплекс состоит из двух домов в 17 и 18 этажей. Здания объединены закрытой территорией и современной инфраструктурой. Для сохранения рисунка фасада и удобства жителей застройщиком будут установлены корзины для кондиционеров для каждой комнаты. В «Инстеп.Перова присутствуют видовые квартиры с отличным видом в сторону проспекта Победы и Центрального рынка. Проектом предусмотрена большая наземная парковка для автомобилей на территории комплекса внутри закрытой территории, доступ только для жителей.В ЖК «Инстеп.Пероваазработана уникальная концепция благоустройства, вдохновленная творчеством художника В. Г. Перова и его произведением «Охотники на привале . Основной упор в благоустройстве сделан на гармонию с природой, поэтому используются детские игровые комплексы из натурального дерева в эко-стиле.Во второй позиции планируется открытие коммерческих помещений на первых этажах для дополнительного удобства жителей.Вход в подъезды – с уровня земли. Улучшенная отделка подъездов и межквартирных коридоров по дизайн-проекту. Установлены лифты Метеор (экс-ОТIS) с индивидуальным дизайном.ОТДЕЛКАВ базовом варианте квартиры сдаются в состоянии предчистовой отделки (с ровными стенами и потолками, установленными розетками и радиаторами, качественной входной дверью и т.д.). Но при этом можно приобрести жилую площадь уже с чистовой отделкой, выбирая из двух вариантов – «Комфорт или «Бизнес . АКЦИИ И УСЛОВИЯ ПРИОБРЕТЕНИЯКвартира от застройщика «ИНСТЕП подходит под программы «Семейная ипотека и ИТ-ипотека. Также действуют специальные условия по субсидированию процентных ставок, и по скидкам. Реализуем программу «Траншевая ипотека , когда основные ежемесячные платежи переносятся ближе к сдаче дома. Подробную информацию про действующие акции можно узнать в отделе продаж «ИНСТЕП . Менеджеры отдела продаж с удовольствием Вас проконсультируют и помогут.

Читать полностью
    Позвонить Написать
    4 508 700 Р55 510 $ или 48 050
    Агент
    +7 (903) 862-89-62
    Начать чат с агентом
    Похожие предложения в Липецке
    1-к кв. Липецкая область, Липецк ул. Перова, 1 (42.24 м) - Фото 1
    1-к кв. Липецкая область, Липецк ул. Перова, 1 (42.24 м) - Фото 2
    1-комнатная квартира, общая площадь 42м², жилая 11м², кухня 16м²

    Арт.Продаю Современную Однокомнатную квартиру с большой кухней-гостиной в новом ЖК Инстеп Перова.Новый жилой комплекс комфорт-класса ИНСТЕП.ПЕРОВА в центре Липецка с отличной транспортной инфраструктурой, обеспечивающей удобное сообщение со всеми районами...
    • 42 м²
    • 1-ком
    • 3/17 эт.
    • панельный
    4 498 560 Р
    Агент
    +7 (919) Показать номер
    Посмотреть контакты
    2-к кв. Липецкая область, Липецк ул. Перова, 2Д (42.24 м) - Фото 1
    2-к кв. Липецкая область, Липецк ул. Перова, 2Д (42.24 м) - Фото 2
    2-комнатная квартира, общая площадь 42м², жилая 11м², кухня 16м²

    Арт.Внимание Дом сдается уже в этом году Продается квартира от застройщика с ремонтом или без него по сниженной ставке на весь срок 4 6 или 13.9 ( если не подходите под льготную ипотеку)Окна выходят во дворСан узел совмещен.Просторная кухня гостинная.В...
    • 42 м²
    • 2-ком
    • 2/17 эт.
    • панельный
    4 435 200 Р
    Агент
    +7 (919) Показать номер
    Посмотреть контакты
    1-к кв. Липецкая область, Липецк ул. Перова (38.06 м) - Фото 1
    1-к кв. Липецкая область, Липецк ул. Перова (38.06 м) - Фото 2
    1-комнатная квартира, общая площадь 38м², жилая 10м², кухня 15м²

    Арт.Предлагаем вашему вниманию двухкомнатную квартиру на 8 этаже в замечательном ЖК (3 подъезд). Панельный (утепленный) дом класса Комфорт . Отделка: черновая, есть возможность выбрать ремонт.1 позиция. СРОК СДАЧИ 4 КВАРТАЛ 2025 ГОДА.Преимущества комплекса:...
    • 38 м²
    • 1-ком
    • 7/17 эт.
    • панельный
    4 453 020 Р
    Агент
    +7 (919) Показать номер
    Посмотреть контакты
    1-к кв. Липецкая область, Липецк ул. Буденного, 8В (37.92 м) - Фото 1
    1-к кв. Липецкая область, Липецк ул. Буденного, 8В (37.92 м) - Фото 2
    1-комнатная квартира, общая площадь 37м², жилая 14м², кухня 11м²

    Арт.Квартира на главном проспекте городаЖК Располагается на Проспект Победы, район АвтовокзалаЖК Коллекционер , Дом 2Сдача дома 4 квартал 2026г.Квартира НЕ угловаяКласс Комфорт + Тип строительства : монолитный + кирпич. Фасад Штукатурка + утеплитель+...
    • 37 м²
    • 1-ком
    • 12/24 эт.
    4 436 640 Р
    Агент
    +7 (919) Показать номер
    Посмотреть контакты
    1-к кв. Липецкая область, Липецк ул. Перова, 1 (42.24 м) - Фото 1
    1-к кв. Липецкая область, Липецк ул. Перова, 1 (42.24 м) - Фото 2
    1-комнатная квартира, общая площадь 42м², жилая 11м², кухня 16м²

    Арт.Продаю Современную Однокомнатную квартиру с большой кухней-гостиной в новом ЖК Инстеп Перова.Новый жилой комплекс комфорт-класса ИНСТЕП.ПЕРОВА в центре Липецка с отличной транспортной инфраструктурой, обеспечивающей удобное сообщение со всеми районами...
    • 42 м²
    • 1-ком
    • 3/17 эт.
    • панельный
    4 498 560 Р
    Агент
    +7 (919) Показать номер
    Посмотреть контакты

    Не нашли подходящего объявления?

    Оставьте заявку, и наши риэлторы подберут квартиру в новостройке в районе Липецка

    (0)