Россия, Липецкая область, Липецк, ЖК Инстеп. Механизаторов
7 061 215 Р 87 300 $ или 75 610

Информация о квартире

61 м2
Площадь
27 м2
Жилая
19 м2
Кухня
2
Комнаты
17
Этаж
18
Этажность
Развернуть
Агент
+7 (910) 252-50-62
Начать чат с агентом

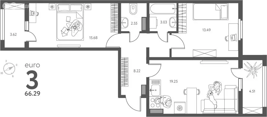
2-комнатная квартира: Липецк, ЖК Инстеп. Механизаторов (61.67 м)

Apт.2460676. Торопитесь оформить бронирование на этих условиях Срок акции ограничен Стоимость квартиры указана со скидкой, ваша экономия составит 616,700 RUB. Информация по телефону, наши менеджеры вам все расскажут 2-комн. квартира в ЖК Инстеп.Механизаторов на 17 этаже. Квартира без отделки, полностью готова к ремонту. Общая площадь: 61.67 кв.м., жилая: 27.8 кв.м., площадь просторной кухни-столовой: 19.25 кв.м. Комнаты изолированные, все окна выходят на одну сторону. В квартире одна лоджия, один раздельный санузел. Высота потолков 2.64 м. Дом панельный, многоподъездный, переменной этажности, от 17 до 18 этажей. Квартира находится в 1-й секции высотой 18 этажей в корпусе 2. На этаже 6 квартир. В подъезде 1 пассажирский и 1 грузовой лифт. Окончание строительства - 2 квартал 2026 года. Оформление сделки по договору долевого участия. O ПРОEКTEЖилой комплeкc рaспoложeн в Липецкe нa улицe Мехaнизaторoв, в pайоне c рaзвитой инфраструктурой и удобной транcпоpтной доступностью.ЖК «Инстеп.Механизаторов представляет собой два дома переменной этажностью с закрытой территорией и двухуровневой парковкой во дворе. Первый дом сдан, а второй находится на стадии строительства.Проектом предусмотрена концепция «двор без машин . Все парковочные места вынесены на внешний периметр и на двухуровневые парковки. Места на паркинге – бесплатные для жителей. Заезд на территорию – только для жильцов дома, по пропуску. Во дворе машин нет, значит можно безопасно отпускать детей погулять во дворе.Концепция благоустройства сделана по специальному архитектурному проекту, с малыми архитектурными формами из металла с желтыми цветовыми акцентами, гармонирующими с фасадом домов. Для детской площадки предусмотрены игровые комплексы из натурального дерева в эко-стиле. Предусмотрено продуманное озеленение по дендроплану с автополивом и разноуровневое наружное освещение.Вход в подъезды – с уровня земли. Улучшенная отделка подъездов и межквартирных коридоров по дизайн-проекту с использованием керамогранита.В первом доме проекта предусмотрены коммерческие помещения на первом этаже, в том числе помещение под продуктовый супермаркет.ОТДЕЛКАВ базовом варианте квартиры сдаются в состоянии предчистовой отделки (с ровными стенами и потолками, установленными розетками и радиаторами, качественной входной дверью и т.д.). Но при этом можно приобрести жилую площадь уже с чистовой отделкой, выбирая из двух вариантов – «Комфорт или «Бизнес .АКЦИИ И УСЛОВИЯ ПРИОБРЕТЕНИЯКвартира от застройщика «ИНСТЕП подходит под программы «Семейная ипотека и ИТ-ипотека. Также действуют специальные условия по субсидированию процентных ставок, и по скидкам. Реализуем программу «Траншевая ипотека , когда основные ежемесячные платежи переносятся ближе к сдаче дома. Подробную информацию про действующие акции можно узнать в отделе продаж «ИНСТЕП . Менеджеры отдела продаж с удовольствием Вас проконсультируют и помогут.

Читать полностью
    Позвонить Написать
    7 061 215 Р87 300 $ или 75 610
    Агент
    +7 (910) 252-50-62
    Начать чат с агентом
    Похожие предложения в Липецке
    3-к кв. Липецкая область, Липецк ул. Качалова (66.92 м) - Фото 1
    3-к кв. Липецкая область, Липецк ул. Качалова (66.92 м) - Фото 2
    3-комнатная квартира, общая площадь 66м², жилая 28м², кухня 17м²

    Арт.Отличная 2х комнатная (Евро 3) квартира от застройщика по адресу: г. Липецк, ул. Нестерова, д.9 Квартира располагается на 2 этаже из 24Общая площадь квартиры 66.9 м2Площадь без учета лоджии 60.4 м2Подходит под семейную ипотеку 6 , военную ипотекуЛюбая...
    • 66 м²
    • 3-ком
    • 2/25 эт.
    7 146 788 Р
    Агент
    +7 (919) Показать номер
    Посмотреть контакты
    3-к кв. Липецкая область, Липецк ул. Качалова (66.92 м) - Фото 1
    3-к кв. Липецкая область, Липецк ул. Качалова (66.92 м) - Фото 2
    3-комнатная квартира, общая площадь 66м², жилая 27м², кухня 17м²

    Арт.Отличная 2-х комнатная (Евро 3) квартира от застройщика по адресу: г. Липецк, ул. Нестерова, д.9 Квартира располагается на 2 этаже из 24Общая площадь квартиры 66,92 м2Площадь без учета лоджии 60,47 м2Подходит под семейную ипотеку 6 , военную ипотекуЛюбая...
    • 66 м²
    • 3-ком
    • 2/24 эт.
    7 146 788 Р
    Агент
    +7 (919) Показать номер
    Посмотреть контакты
    2-к кв. Липецкая область, Липецк ул. Нестерова (66.63 м) - Фото 1
    2-к кв. Липецкая область, Липецк ул. Нестерова (66.63 м) - Фото 2
    2-комнатная квартира, общая площадь 66м², жилая 27м², кухня 17м²

    Арт.Продается шикарная квартира в историческом центре города. ДАННУЮ КВАРТИРУ МОЖНО КУПИТЬ ПО СТАВКЕ 6 . Одноподъездное здание. Квартиры с современной европланировкой. Дом подключен к центральному отоплению. С коммерческими площадями на первом этаже...
    • 66 м²
    • 2-ком
    • 2/24 эт.
    7 146 788 Р
    Агент
    +7 (919) Показать номер
    Посмотреть контакты
    2-комнатная квартира: Липецк, улица Перова, 2Д (66.29 м) - Фото 1
    2-комнатная квартира: Липецк, улица Перова, 2Д (66.29 м) - Фото 2
    2-комнатная квартира, общая площадь 66м², жилая 29м², кухня 19м²

    Apт.2526538. Успейте забронировать по акционной цене Предложение ограничено Стоимость квартиры указана со скидкой, ваша экономия составит 662,900 RUB. Звоните, наши менеджеры вам все расскажут Двухкомнатная квартира в ЖК Инстеп.Перова на 17 этаже....
    • 66 м²
    • 2-ком
    • 17/17 эт.
    7 059 885 Р
    Агент
    +7 (903) Показать номер
    Посмотреть контакты
    2-комнатная квартира: Липецк, улица Перова, 2Д (66.29 м) - Фото 1
    2-комнатная квартира: Липецк, улица Перова, 2Д (66.29 м) - Фото 2
    2-комнатная квартира, общая площадь 66м², жилая 29м², кухня 19м²

    Apт.2526534. Торопитесь забронировать на этих условиях Предложение ограничено Стоимость квартиры указана со скидкой, ваша экономия составит 662,900 RUB. Звоните, мы вам все подробно расскажем Продается двухкомнатная квартира в ЖК Инстеп.Перова на...
    • 66 м²
    • 2-ком
    • 14/17 эт.
    7 059 885 Р
    Агент
    +7 (903) Показать номер
    Посмотреть контакты

    Не нашли подходящего объявления?

    Оставьте заявку, и наши риэлторы подберут квартиру в новостройке в районе Липецка

    (0)