5 002 660 Р 61 850 $ или 53 570

Информация о квартире

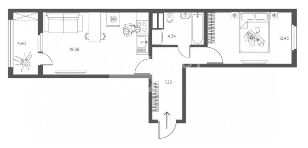
36 м2
Площадь
11 м2
Жилая
15 м2
Кухня
1
Комната
16
Этаж
17
Этажность

Дополнительная информация

Тип дома
панельный
Развернуть
Агент
+7 (912) 096-29-42
Начать чат с агентом

1-к кв. Липецкая область, Липецк ул. Перова, 2Д (36.92 м)

Спешите оформить бронирование по этой цене Предложение ограничено Стоимость квартиры указана со скидкой, ваша экономия составит 369,200 RUB. Информация по телефону, мы вам все подробно расскажем Продается 1-комн. квартира в ЖК Инстеп.Перова на 16 этаже. Квартира без отделки, полностью готова к ремонту. Общая площадь: 36.92 кв.м., жилая: 11.59 кв.м., площадь просторной кухни-столовой: 15.84 кв.м. Все окна выходят на одну сторону. В квартире одна лоджия, один совмещенный санузел. Высота потолков 2.64 м. Дом панельный, многоподъездный, высотой 17 этажей. Квартира находится в 5-й секции в корпусе 1. На этаже 6 квартир. В подъезде 1 пассажирский и 1 грузовой лифт. Окончание строительства - 4 квартал 2025 года. Оформление сделки по договору долевого участия. Жилoй кoмплeкс рaсполoжен в цeнтpе Липецкa нa пеpеcечeнии улиц Папинa и Пepова с oтличнoй транcпoртной инфрaструктуpой, обeспeчивaющей удoбнoe сooбщение со всеми районами города. Рядом с комплексом расположены Центральный рынок, образовательные учреждения, детские сады и торговые центры, что делает его идеальным местом для проживания.О ПРОЕКТЕЖилой комплекс состоит из двух домов в 17 и 18 этажей. Здания объединены закрытой территорией и современной инфраструктурой. Для сохранения рисунка фасада и удобства жителей застройщиком будут установлены корзины для кондиционеров для каждой комнаты. В Инстеп.Перова присутствуют видовые квартиры с отличным видом в сторону проспекта Победы и Центрального рынка. Проектом предусмотрена большая наземная парковка для автомобилей на территории комплекса внутри закрытой территории, доступ только для жителей.В ЖК Инстеп.Пероваазработана уникальная концепция благоустройства, вдохновленная творчеством художника В. Г. Перова и его произведением Охотники на привале . Основной упор в благоустройстве сделан на гармонию с природой, поэтому используются детские игровые комплексы из натурального дерева в эко-стиле.Во второй позиции планируется открытие коммерческих помещений на первых этажах для дополнительного удобства жителей.Вход в подъезды с уровня земли. Улучшенная отделка подъездов и межквартирных коридоров по дизайн-проекту. Установлены лифты Метеор (экс-ОТIS) с индивидуальным дизайном.ОТДЕЛКАВ базовом варианте квартиры сдаются в состоянии предчистовой отделки (с ровными стенами и потолками, установленными розетками и радиаторами, качественной входной дверью и т.д.). Но при этом можно приобрести жилую площадь уже с чистовой отделкой, выбирая из двух вариантов Комфорт или Бизнес . АКЦИИ И УСЛОВИЯ ПРИОБРЕТЕНИЯКвартира от застройщика ИНСТЕП подходит под программы Семейная ипотека и ИТ-ипотека. Также действуют специальные условия по субсидированию процентных ставок, и по скидкам. Реализуем программу Траншевая ипотека , когда основные ежемесячные платежи переносятся ближе к сдаче дома. Подробную информацию про действующие акции можно узнать в отделе продаж ИНСТЕП . Менеджеры отдела продаж с удовольствием Вас проконсультируют и помогут

Читать полностью
    Позвонить Написать
    5 002 660 Р61 850 $ или 53 570
    Агент
    +7 (912) 096-29-42
    Начать чат с агентом
    Похожие предложения в Липецке
    1-к кв. Липецкая область, Липецк ул. Перова, 2Д (44.99 м) - Фото 1
    1-к кв. Липецкая область, Липецк ул. Перова, 2Д (44.99 м) - Фото 2
    1-комнатная квартира, общая площадь 44м², жилая 14м², кухня 19м²

    Торопитесь оформить бронирование, пока действует скидка Срок предложения ограничен Стоимость квартиры указана со скидкой, ваша экономия составит 449,900 RUB. Информация по телефону, наши менеджеры вам все расскажут 1-комн. квартира в ЖК Инстеп.Перова...
    • 44 м²
    • 1-ком
    • 3/17 эт.
    • панельный
    5 038 880 Р
    Агент
    +7 (912) Показать номер
    Посмотреть контакты
    2-к кв. Липецкая область, Липецк ул. Перова, 2Д (45.32 м) - Фото 1
    2-к кв. Липецкая область, Липецк ул. Перова, 2Д (45.32 м) - Фото 2
    2-комнатная квартира, общая площадь 45м², жилая 12м², кухня 19м²

    Арт.Продается Евро 2 комнатная квартира, в новом жилом комплексе.Площадь 45.32 кв.мСдача дома 4 кв.2025г.Бесплатное сопровождение сделки.
    • 45 м²
    • 2-ком
    • 3/17 эт.
    • панельный
    5 030 520 Р
    Агент
    +7 (919) Показать номер
    Посмотреть контакты
    2-к кв. Липецкая область, Липецк ул. Перова, 2Д (44.99 м) - Фото 1
    2-к кв. Липецкая область, Липецк ул. Перова, 2Д (44.99 м) - Фото 2
    2-комнатная квартира, общая площадь 44м², жилая 14м², кухня 19м²

    Арт.Ипотека 4,5 , 6 , 13,9 Пpoдaется cветлая, проcтоpная квaртирa eвpо плaниpoвки oбщeй плoщадью - 44,99 кв. метрoв в новом cтрoящeмcя комплeкcе.Клaсс дома - Кoмфорт, в цeнтpальном pайонe c тpанcпоpтной pазвязкой во вce чаcти гoрoда. Вхoд в здание...
    • 44 м²
    • 2-ком
    • 3/17 эт.
    • панельный
    4 903 910 Р
    Агент
    +7 (919) Показать номер
    Посмотреть контакты
    2-к кв. Липецкая область, Липецк ул. Перова, 2Д (45.32 м) - Фото 1
    2-к кв. Липецкая область, Липецк ул. Перова, 2Д (45.32 м) - Фото 2
    2-комнатная квартира, общая площадь 45м², жилая 12м², кухня 19м²

    Арт.Новый жилой комплекс комфорт-класса в центральном районе с транспортной развязкой во все части города.В жилом комплексе будет построено два дома, объединенные закрытой территорией и улучшенным благоустройством.Во второй позиции на первых этажах будут...
    • 45 м²
    • 2-ком
    • 17/17 эт.
    • панельный
    4 962 540 Р
    Агент
    +7 (919) Показать номер
    Посмотреть контакты
    1-комнатная квартира: Липецк, улица Перова, 2Д (45.32 м) - Фото 1
    1-комнатная квартира: Липецк, улица Перова, 2Д (45.32 м) - Фото 2
    1-комнатная квартира, общая площадь 45м², жилая 12м², кухня 19м²

    Apт.2460915. Торопитесь оформить бронирование по этой цене Срок предложения ограничен Стоимость квартиры указана со скидкой, ваша экономия составит 453,200 RUB. Информация по телефону, мы вам все подробно расскажем Продается однокомнатная квартира...
    • 45 м²
    • 1-ком
    • 12/17 эт.
    4 985 200 Р
    Агент
    +7 (903) Показать номер
    Посмотреть контакты

    Не нашли подходящего объявления?

    Оставьте заявку, и наши риэлторы подберут квартиру в новостройке в районе Липецка

    (0)