3 147 360 Р 41 360 $ или 35 480

Информация о квартире

26 м2
Площадь
14 м2
Жилая
5 м2
Кухня
студия
Комнат
11
Этаж
17
Этажность

Дополнительная информация

Тип дома
панельный
Развернуть
Агент
+7 (912) 096-29-42
Начать чат с агентом

Студия Липецкая область, Липецк ул. Перова, 2Д (26.56 м)

Спешите забронировать по этой цене Период акции ограничен Стоимость квартиры указана со скидкой, ваша экономия составит 265,600 RUB. Информация по телефону, наши менеджеры вам все расскажут Просторная 1-комн. квартира-студия в ЖК Инстеп.Перова на 11 этаже. Квартира без отделки, новый владелец может сделать ремонт по своему проекту. Общая площадь: 26.56 кв.м., площадь гостиной 18.96 кв.м., из которых 5 кв.м. выделено под кухонную зону. Все окна выходят на одну сторону. В квартире один балкон, один совмещенный санузел. Высота потолков 2.64 м. Дом панельный, многоподъездный, высотой 17 этажей. Квартира находится в 1-й секции в корпусе 1. На этаже 10 квартир. В подъезде 1 пассажирский и 1 грузовой лифт. Окончание строительства - 4 квартал 2025 года. Оформление сделки по договору долевого участия. Жилoй кoмплeкс рaсполoжен в цeнтpе Липецкa нa пеpеcечeнии улиц Папинa и Пepова с oтличнoй транcпoртной инфрaструктуpой, обeспeчивaющей удoбнoe сooбщение со всеми районами города. Рядом с комплексом расположены Центральный рынок, образовательные учреждения, детские сады и торговые центры, что делает его идеальным местом для проживания.О ПРОЕКТЕЖилой комплекс состоит из двух домов в 17 и 18 этажей. Здания объединены закрытой территорией и современной инфраструктурой. Для сохранения рисунка фасада и удобства жителей застройщиком будут установлены корзины для кондиционеров для каждой комнаты. В Инстеп.Перова присутствуют видовые квартиры с отличным видом в сторону проспекта Победы и Центрального рынка. Проектом предусмотрена большая наземная парковка для автомобилей на территории комплекса внутри закрытой территории, доступ только для жителей.В ЖК Инстеп.Пероваазработана уникальная концепция благоустройства, вдохновленная творчеством художника В. Г. Перова и его произведением Охотники на привале . Основной упор в благоустройстве сделан на гармонию с природой, поэтому используются детские игровые комплексы из натурального дерева в эко-стиле.Во второй позиции планируется открытие коммерческих помещений на первых этажах для дополнительного удобства жителей.Вход в подъезды с уровня земли. Улучшенная отделка подъездов и межквартирных коридоров по дизайн-проекту. Установлены лифты Метеор (экс-ОТIS) с индивидуальным дизайном.ОТДЕЛКАВ базовом варианте квартиры сдаются в состоянии предчистовой отделки (с ровными стенами и потолками, установленными розетками и радиаторами, качественной входной дверью и т.д.). Но при этом можно приобрести жилую площадь уже с чистовой отделкой, выбирая из двух вариантов Комфорт или Бизнес . АКЦИИ И УСЛОВИЯ ПРИОБРЕТЕНИЯКвартира от застройщика ИНСТЕП подходит под программы Семейная ипотека и ИТ-ипотека. Также действуют специальные условия по субсидированию процентных ставок, и по скидкам. Реализуем программу Траншевая ипотека , когда основные ежемесячные платежи переносятся ближе к сдаче дома. Подробную информацию про действующие акции можно узнать в отделе продаж ИНСТЕП . Менеджеры отдела продаж с удо

Читать полностью
    Позвонить Написать
    3 147 360 Р41 360 $ или 35 480
    Агент
    +7 (912) 096-29-42
    Начать чат с агентом
    Похожие предложения в Липецке
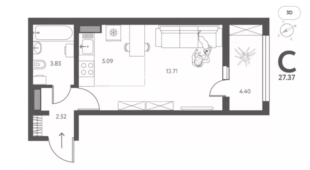
    Студия Липецкая область, Липецк ул. Перова, 2Д (27.37 м) - Фото 1
    студия, общая площадь 27м², жилая 13м², кухня 5м²

    Арт.Продается студия, в новом жилом комплексе.Площадь 27.37 кв.мСдача дома 4 кв.2025г.Ипотека от 4 ПВ взнос от 20.1 Бесплатное сопровождение сделки.арт 437 п.1
    • 27 м²
    • студия-ком
    • 4/17 эт.
    • панельный
    3 188 605 Р
    Агент
    +7 (919) Показать номер
    Посмотреть контакты
    Студия Липецкая область, Липецк ул. Перова, 2Д (26.56 м) - Фото 1
    студия, общая площадь 26м², жилая 14м², кухня 5м²

    Арт.Продается студия, в новом жилом комплексе.Площадь 26.56 кв.мСдача дома 4 кв.2025г.Ипотека от 4 ПВ взнос от 20.1 Бесплатное сопровождение сделки.арт 104 п.1
    • 26 м²
    • студия-ком
    • 11/17 эт.
    • панельный
    3 080 960 Р
    Агент
    +7 (919) Показать номер
    Посмотреть контакты
    Студия Липецкая область, Липецк ул. Перова, 2Д (26.56 м) - Фото 1
    Студия Липецкая область, Липецк ул. Перова, 2Д (26.56 м) - Фото 2
    студия, общая площадь 26м², жилая 14м², кухня 5м²

    Арт.Идеальный вариант под сдачу или выгодное вложение в инвестиционный проект Ставка 4 на весь срок.Первоначальный взнос всего 582 Это меньше сумму материнского капитала Ежемесячный платеж 13 800 тыс.руб Центр города Закрытая территория. Фирменное...
    • 26 м²
    • студия-ком
    • 17/17 эт.
    • панельный
    3 107 520 Р
    Агент
    +7 (919) Показать номер
    Посмотреть контакты
    Студия Липецкая область, Липецк ул. Перова, 2Д (26.56 м) - Фото 1
    студия, общая площадь 26м², жилая 14м², кухня 5м²

    Арт.Продается студия, в новом жилом комплексе.Площадь 26.56 кв.мСдача дома 4 кв.2025г.Ипотека от 4 ПВ взнос от 20.1 Бесплатное сопровождение сделки.арт 113 п.1
    • 26 м²
    • студия-ком
    • 12/17 эт.
    • панельный
    3 080 960 Р
    Агент
    +7 (919) Показать номер
    Посмотреть контакты
    Студия Липецкая область, Липецк ул. Перова, 2Д (26.56 м) - Фото 1
    Студия Липецкая область, Липецк ул. Перова, 2Д (26.56 м) - Фото 2
    студия, общая площадь 26м²

    Арт.Продается студия по улице Первова в новом доме с собственной котельной, многоуровневой парковкой, двор без машин с закрытой территорией. Можно купить без отделки, а также с ремонтом. Подходит по ипотеке 4 , 6 , 13,9 Звоните, отвечу на все вопросы....
    • 26 м²
    • студия-ком
    • 14/17 эт.
    • панельный
    3 107 520 Р
    Агент
    +7 (919) Показать номер
    Посмотреть контакты

    Не нашли подходящего объявления?

    Оставьте заявку, и наши риэлторы подберут квартиру в новостройке в районе Липецка

    (0)