8 198 190 Р 107 700 $ или 92 420

Информация о квартире

81 м2
Площадь
39 м2
Жилая
18 м2
Кухня
3
Комнаты
13
Этаж
18
Этажность

Дополнительная информация

Тип дома
панельный
Развернуть
Агент
+7 (919) 163-26-17
Начать чат с агентом

3-к кв. Липецкая область, Липецк Ленина-Соборная пл. (81.9 м)

Арт.Жилой дом Призма — это гармоничное сочетание современного дизайна и функциональности. Стильные архитектурные решения и продуманная планировка создают уютную и комфортную атмосферу для всей семьи. Использование передовых технологий в строительстве гарантирует высокий уровень безопасности, энергоэффективности и долговечности. Варианты с отделкой позволяют выбрать идеальное пространство под ваш вкус и стиль жизни. Призма — ваш надежный выбор для комфортного и современного проживания Звоните прямо сейчас и узнавайте подробности подходит под льготную ипотеку 6

Читать полностью
    Позвонить Написать
    8 198 190 Р107 700 $ или 92 420
    Агент
    +7 (919) 163-26-17
    Начать чат с агентом
    Похожие предложения
    2-к кв. Липецкая область, Липецк Ленина-Соборная пл. (78.1 м) - Фото 1
    2-к кв. Липецкая область, Липецк Ленина-Соборная пл. (78.1 м) - Фото 2
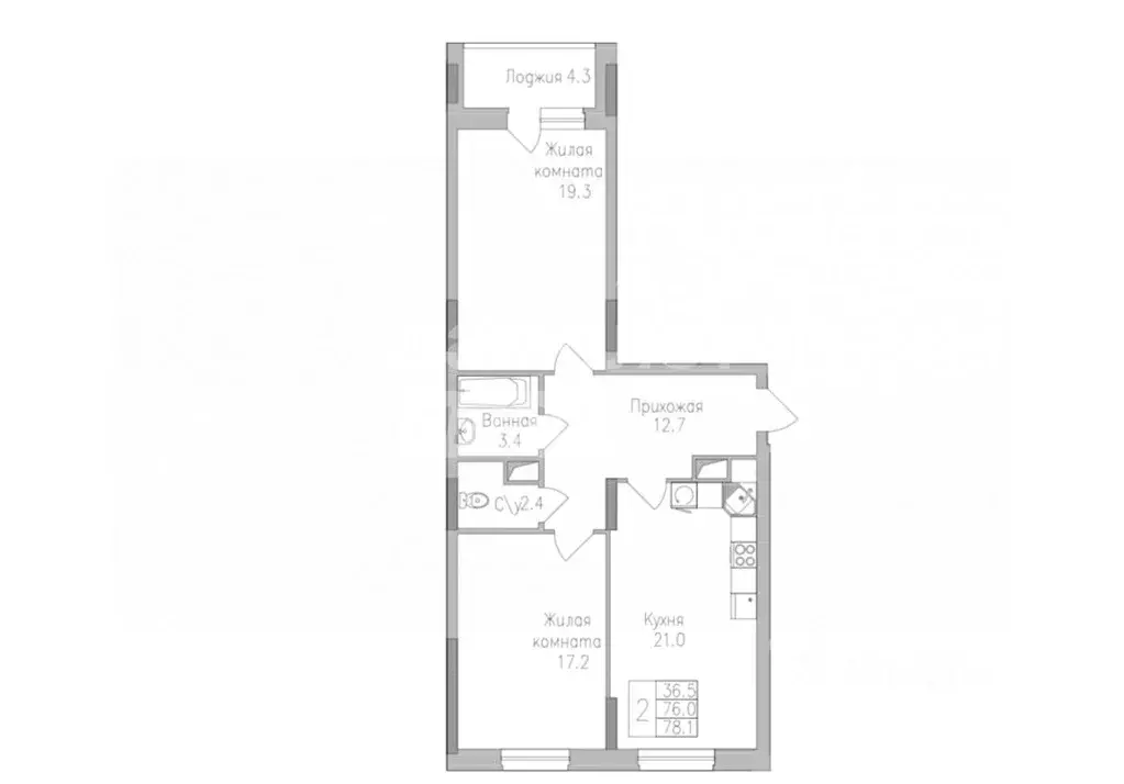
    2-комнатная квартира, общая площадь 78м², жилая 36м², кухня 21м²

    Арт.Добро пожаловать в ЖК Поколение Комплекс Будущего — ваш дом уже сегодня Этот современный жилой комплекс сочетает передовые технологии и комфорт, делая вашу жизнь максимально удобной и безопасной.Что вас ждет:Ипотека для семей: от 5,3 Ипотека на...
    • 78 м²
    • 2-ком
    • 11/17 эт.
    8 279 000 Р
    Агент
    +7 (919) Показать номер
    Посмотреть контакты
    3-к кв. Липецкая область, Липецк ул. Невского, 9 (79.0 м) - Фото 1
    3-к кв. Липецкая область, Липецк ул. Невского, 9 (79.0 м) - Фото 2
    3-комнатная квартира, общая площадь 79м²

    Продаётся 3-комнатная квартира в строящемся доме (Дом 1), срок сдачи: I-кв. 2028, общей площадью 79 кв.м., на 5 этаже.
    • 79 м²
    • 3-ком
    • 5/7 эт.
    • кирпичный
    8 216 000 Р
    Агент
    +7 (932) Показать номер
    Посмотреть контакты
    3-к кв. Липецкая область, Липецк ул. Невского, 9 (78.6 м) - Фото 1
    3-к кв. Липецкая область, Липецк ул. Невского, 9 (78.6 м) - Фото 2
    3-комнатная квартира, общая площадь 78м²

    Продаётся 3-комнатная квартира в строящемся доме (Дом 1), срок сдачи: I-кв. 2028, общей площадью 78.6 кв.м., на 5 этаже.
    • 78 м²
    • 3-ком
    • 5/7 эт.
    • кирпичный
    8 174 400 Р
    Агент
    +7 (932) Показать номер
    Посмотреть контакты
    3-комнатная квартира: Липецк, ЖК Инстеп. Перова (84.26 м) - Фото 1
    3-комнатная квартира: Липецк, ЖК Инстеп. Перова (84.26 м) - Фото 2
    3-комнатная квартира, общая площадь 84м², жилая 38м², кухня 19м²

    Apт.2461283. Продается 3-комн. квартира в ЖК Инстеп.Перова на 13 этаже. Квартира без отделки, новый владелец может сделать ремонт по своему проекту. Общая площадь: 84.26 кв.м., жилая: 38.09 кв.м., площадь просторной кухни-столовой: 19.54 кв.м. Квартира...
    • 84 м²
    • 3-ком
    • 13/18 эт.
    8 131 090 Р
    Агент
    +7 (903) Показать номер
    Посмотреть контакты
    2-к кв. Липецкая область, Липецк ул. Ф.С. Игнатьева, 33к2 (68.8 м) - Фото 1
    2-к кв. Липецкая область, Липецк ул. Ф.С. Игнатьева, 33к2 (68.8 м) - Фото 2
    2-комнатная квартира, общая площадь 68м²

    Продаётся 2-комнатная квартира в сданном доме (ул. Ф.С. Игнатьева, 33к2 (Дом 2 (БС 3,4))), срок сдачи: III-кв. 2025, общей площадью 68.2 кв.м., на 8 этаже. 2я очередь строительства ЖК Атмосфера .Просторная планировка. Санузел совместный. Потолок высокий.Дом...
    • 68 м²
    • 2-ком
    • 8/25 эт.
    • монолит
    8 278 300 Р
    Агент
    +7 (912) Показать номер
    Посмотреть контакты

    Не нашли подходящего объявления?

    Оставьте заявку, и наши риэлторы подберут квартиру в новостройке в районе Липецка

    (0)