Россия, Липецкая область, Грязинский район, коттеджный посёлок Ново-Заречное
7 990 000 Р 103 500 $ или 88 060

Информация о коттедже

136 м2
Площадь
1
Этажность
12 cоток
Участок

Дополнительная информация

Дом продаётся вместе с участком
есть
Развернуть
Агент
+7 (919) 250-73-19
Начать чат с агентом

Дом в Липецкая область, Грязинский район, Плехановский сельсовет, ...

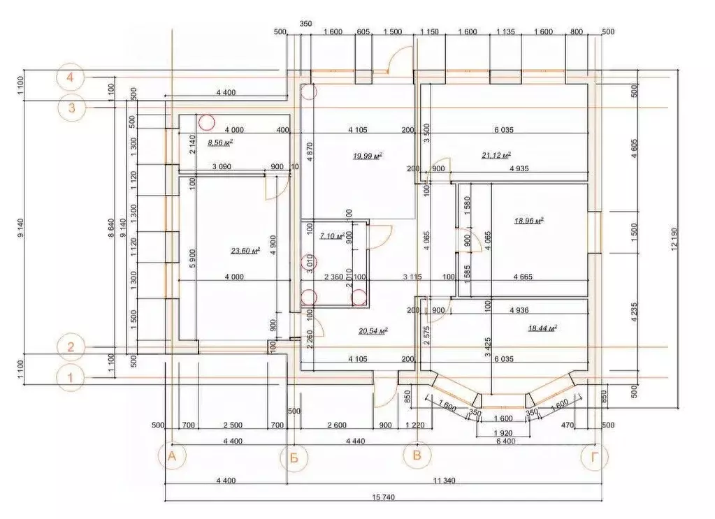
Код объекта: 1569337.Продается одноэтажный дом с тремя спальнями и просторной кухней - гостиной в селе Плеханово (КП Ново-Заречное), на участке 12,5 соток по ул. Земляничная д.39.Общая площадь дома 136,6 м2. Просторная кухня-гостиная площадью 41,5 м2 с выходом на террасу, мастер-спальня площадью 15,5 м2, с отдельным санузлом и двумя гардеробными, две спальни по 12 м2, второй санузел 5,5 м2, бойлерная/постирочная 9 м2.* Ленточный фундамент 1700х400 мм.* Внешние стены из газосиликатного блока толщиной 400 мм (яда по 200 мм со смещением). Внутренние перегородки: несущие стены - 300 мм, межкомнатные 150 мм.* Армопояс 250 мм, перекрытие из деревянных балок 50 х 250 мм. Утеплитель Knauf 200мм.* Мягкая кровля премиум класса Dсke.* Увеличенные оконные проемы с тройным стеклопакетом, профиль толщиной 70 мм.* Крыльцо, терраса.* Дорога до участка отсыпана щебнем. Время в пути, к примеру, от Центрального Рынка до дома 30 минут.Рядом живут порядочные соседи, уже не первый год.Смонтированы все инженерные сети: собственная скважина, электричество 15 кВт., канализация, газ. Вода заведена в дом, разведена система канализации, потолки затянуты пароизоляцией и подшиты.Рядом ещё два аналогичных дома с разной степенью готовности, так что можно переезжать за город большой и дружной компанией. Приезжайте на просмотр, дом вам точно понравится.Рассмотрим любую форму оплаты, кроме ипотеки. Возможен обмен на вашу недвижимость.Есть фото всех этапов строительства.

Читать полностью

    Для того, чтобы купить 1-этажный коттедж по адресу: коттеджный посёлок Ново-Заречное, позвоните по телефону +7 (919) 250-73-19. Торопитесь! Объявление №50015701959 о продаже одноэтажного коттеджа опубликовано Сегодня.

    Позвонить Написать
    7 990 000 Р103 500 $ или 88 060
    Агент
    +7 (919) 250-73-19
    Начать чат с агентом
    Похожие предложения в Грязинском районе
    Дом в Липецкая область, Грязинский муниципальный округ, с. Казинка  ... - Фото 1
    Дом в Липецкая область, Грязинский муниципальный округ, с. Казинка  ... - Фото 2
    1 этаж, общая площадь 115м², участок 15 соток

    Арт.Уважаемые покупатели,представляю Вашему вниманию прекрасный новый дом 115 кв м на участке 15 соток в развитом селе Казинка Грязинского направления.Дом построен из качественных материалов Коммуникации : вода- скважина, электричество,септик,газ по...
    • 1 эт.
    • 115 м²
    • 15 сот.
    7 950 000 Р
    Агент
    +7 (919) Показать номер
    Посмотреть контакты
    Дом в Липецкая область, Грязинский муниципальный округ, с. Казинка ул. ... - Фото 1
    Дом в Липецкая область, Грязинский муниципальный округ, с. Казинка ул. ... - Фото 2
    2 этажа, общая площадь 270м², участок 22 сотки

    Продаю очень хороший большой дом в с. Казинка. На той же улице находится школа, рядом церковь, магазины, остановки и многие другие объекты инфраструктуры. При этом дом находится в конце тупиковой улицы, т.е. машины ездить не будут.Очень много красивых...
    • 2 эт.
    • 270 м²
    • 22 сот.
    8 100 000 Р
    Агент
    +7 (910) Показать номер
    Посмотреть контакты
    Дом в Липецкая область, Грязинский муниципальный округ, с. Каменное ... - Фото 1
    Дом в Липецкая область, Грязинский муниципальный округ, с. Каменное ... - Фото 2
    2 этажа, общая площадь 102м², участок 28 соток

    Арт.Продается уютный дом площадью 102,8 кв. м. в селе Каменное Грязинского района, на берегу Матырского водохранилища.Дом построен в 2015 году с применением качественных материалов и технологий: теплый пол . Цокольный этаж проходит под всем домом и помещение,...
    • 2 эт.
    • 102 м²
    • 28 сот.
    7 950 000 Р
    Агент
    +7 (910) Показать номер
    Посмотреть контакты
    Дом в Липецкая область, Грязинский район, Большесамовецкий сельсовет, ... - Фото 1
    Дом в Липецкая область, Грязинский район, Большесамовецкий сельсовет, ... - Фото 2
    общая площадь 140м², участок 15 соток

    В продаже нoвый, элитный, комфортный дом в стилe мoдерн, с подготовкой под финишную oтделку, в элитном cеле Кaмeннoе, 140 м2, земельный участок 15 соток. Регистрация по адресу:c. Kaмeннoе, ул. Сельская 85 (Грязинcкий р-н), 20 км, 30 минут дo цeнтрa Липeцкa....
    • 140 м²
    • 15 сот.
    7 990 000 Р
    Агент
    +7 (910) Показать номер
    Посмотреть контакты
    Дом в Липецкая область, Грязинский муниципальный округ, с. Ярлуково ... - Фото 1
    Дом в Липецкая область, Грязинский муниципальный округ, с. Ярлуково ... - Фото 2
    2 этажа, общая площадь 150м², участок 20 соток

    Арт.В продаже дом в селе Ярлуково с индивидуальным выходом к реке Дом находится вблизи реки - в нём есть 2 спальные комнаты, бильярднаякомната, комната отдыха, бассейн, парная, комната персонала сочистительными сооружениями. Площадь 150 м.кв. В доме остаётся...
    • 2 эт.
    • 150 м²
    • 20 сот.
    8 000 000 Р
    Агент
    +7 (919) Показать номер
    Посмотреть контакты

    Не нашли подходящего объявления?

    Оставьте заявку, и наши риэлторы подберут купить дом в районе Грязинского района

    (0)