6 400 000 Р 81 270 $ или 70 310

Информация о коттедже

105 м2
Площадь
1
Этажность
6 cоток
Участок

Дополнительная информация

Дом продаётся вместе с участком
есть
Развернуть
Агент
+7 (980) 252-27-08
Начать чат с агентом

Дом в Липецкая область, Елец ул. 122 Стрелковой Дивизии, 8 (105 м)

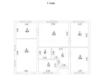
Продается просторный дом площадью 105 кв. м в спокойном районе Первые Лавы города Елец. Объект предлагается с выполненной черновой отделкой и полностью подведенными инженерными сетями, включая электричество, разведенное по первому этажу. На все работы имеются согласованные проекты, что обеспечивает прозрачность и упрощает дальнейшее оформление. Планировка отличается большими комнатами с пластиковыми окнами, предоставляя новому владельцу свободу для реализации собственных дизайнерских решений. Ключевым преимуществом является капитальный подвал высотой 3 метра с кирпичной отделкой, который можно адаптировать под мастерскую, спортзал или зону хранения. Расположение дома сочетает тишину жилой зоны с развитой бытовой инфраструктурой — в шаговой доступности находится магазин, а остановка общественного транспорта расположена в 400 метрах, обеспечивая удобную транспортную связность. В 900 метрах от участка протекает река Сосна, что открывает возможности для отдыха и прогулок на природе. Этот дом — рациональный выбор для тех, кто ищет готовую базу для создания современного жилья в гармонии с городским комфортом и природным окружением. Код пользователя: 164841Номер в базе: 7565798

Читать полностью

    Для того, чтобы купить 1-этажный коттедж по адресу: Елец, ул. 122 Стрелковой Дивизии, 8, позвоните по телефону +7 (980) 252-27-08. Торопитесь! Объявление №50016683767 о продаже одноэтажного коттеджа опубликовано 2 дня назад.

    Позвонить Написать
    6 400 000 Р81 270 $ или 70 310
    Агент
    +7 (980) 252-27-08
    Начать чат с агентом
    Похожие предложения
    Дом в Липецкая область, Липецкий муниципальный округ, с. Косыревка ... - Фото 1
    Дом в Липецкая область, Липецкий муниципальный округ, с. Косыревка ... - Фото 2
    1 этаж, общая площадь 117м², участок 10 соток

    Арт.Продаётся дом 2024 года в с. Косырёвка. Тёплый, продуманный, готов к жизни.Тихий, ухоженный участок 10 соток. Дом построен для себя — с вниманием к деталям и современными технологиями. Всё основное уже сделано, осталось добавить уют. Дом• Год постройки:...
    • 1 эт.
    • 117 м²
    • 10 сот.
    6 500 000 Р
    Агент
    +7 (919) Показать номер
    Посмотреть контакты
    Дом в Липецкая область, Добровский муниципальный округ, с. Большой ... - Фото 1
    Дом в Липецкая область, Добровский муниципальный округ, с. Большой ... - Фото 2
    2 этажа, общая площадь 129м², участок 12 соток

    Арт.В продаже отличный двухэтажный дом 130 м2 на участке 12 соток в шикарном месте у леса.Дом новой постройки от физлица. Дом расположен в с.Большой хомутец, где есть и пруд и лес и развитая инфраструктура. В селе есть школа, детский сад, продуктовые...
    • 2 эт.
    • 129 м²
    • 12 сот.
    6 400 000 Р
    Агент
    +7 (919) Показать номер
    Посмотреть контакты
    Дом в Липецкая область, Липецкий муниципальный округ, с. Ленино, ... - Фото 1
    Дом в Липецкая область, Липецкий муниципальный округ, с. Ленино, ... - Фото 2
    2 этажа, общая площадь 90м², участок 7 соток

    Арт.ДОМА 90м2 по ЛУЧШЕЙ ЦЕНЕ В ГОРОДЕ Предлагаем вашему вниманию дома в 15км от Липецка, поселок ЛАЗУРНЫЙ рядом с с.Ленино Строится новый поселок закрытого типа МАЛИНА , рядом с с.Боринское.Дом 90м2 (два этажа) с отделкой фасада (3 спальни, огромная...
    • 2 эт.
    • 90 м²
    • 7 сот.
    6 500 000 Р
    Агент
    +7 (919) Показать номер
    Посмотреть контакты
    Дом в Липецкая область, Липецк Желтые пески СНТ, уч763 (100 м) - Фото 1
    Дом в Липецкая область, Липецк Желтые пески СНТ, уч763 (100 м) - Фото 2
    1 этаж, общая площадь 100м², участок 10 соток

    Арт.Предлагаем Вашему вниманию новый светлый, просторный дом в живописном месте Фундамент : свайно - ростверковыйСтены: газосиликат Крыша : металлочерепица, потолок утепленСобственная скважина, вода заведена в дом, разводка электрики по всему дому, теплые...
    • 1 эт.
    • 100 м²
    • 10 сот.
    6 490 000 Р
    Агент
    +7 (919) Показать номер
    Посмотреть контакты
    Дом в Липецкая область, Грязи ул. 5 Декабря, 74 (240 м) - Фото 1
    Дом в Липецкая область, Грязи ул. 5 Декабря, 74 (240 м) - Фото 2
    2 этажа, общая площадь 240м², участок 6 соток

    Арт.Дом мечты для большой семьи Продаётся просторный и уютный дом площадью 240 м с гаражом и гостевым домиком.Основной участок в собственности 6 соток,также вокруг дома 15 соток свободной территории. Дом полностью меблирован, сделан свежий ремонт, очень...
    • 2 эт.
    • 240 м²
    • 6 сот.
    6 500 000 Р
    Агент
    +7 (919) Показать номер
    Посмотреть контакты

    Не нашли подходящего объявления?

    Оставьте заявку, и наши риэлторы подберут купить дом в районе Ельца

    (0)