7 500 000 Р 98 560 $ или 84 550

Информация об помещении

2
Этаж

Состояние и оснащение

Количество этажей
3
Развернуть
Агент
+7 (910) 350-15-84
Начать чат с агентом

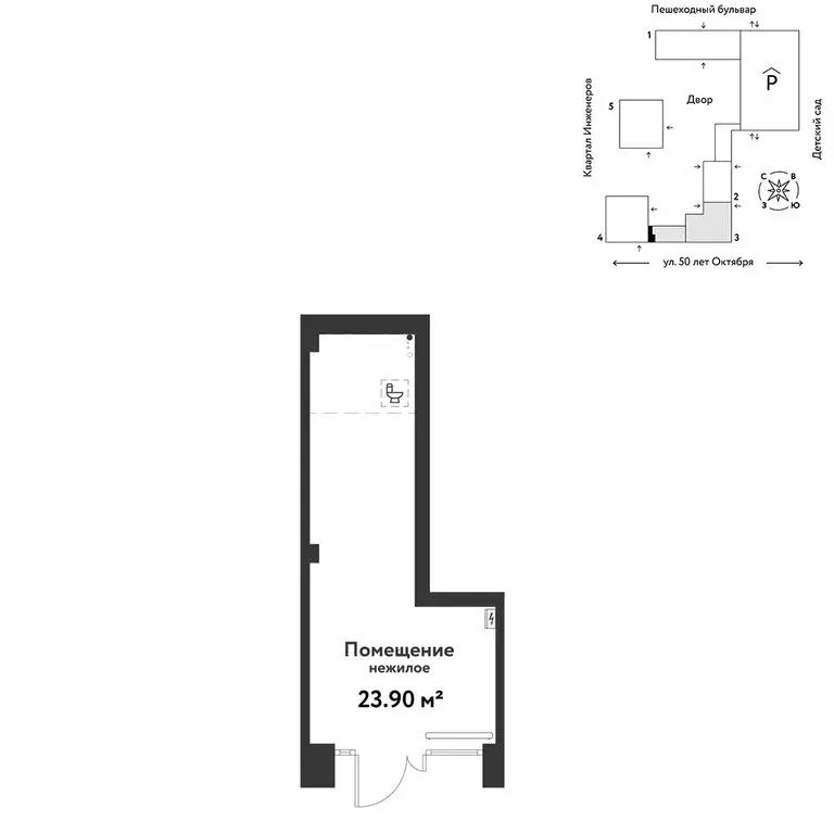
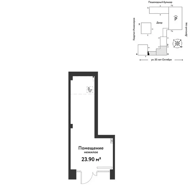
Торговая площадь в Липецкая область, Добровский муниципальный округ, ...

Арт.Продается нежилое помещение, расположенноена 2 - этаже, отдельно стоящего торгового здания.Объект находится в центре с. Каликино.Есть большая парковка и место для рекламы.Первый этаж занимает магазин МАГНИТ .Часть второго этажа сдано в аренду под стоительныймагазин.Есть все коммуникации:Вода (центральная сеть)Отопление (своя газовая котельная)Электричество (50 квт)Ждем Ваших предложений

Читать полностью
    Позвонить Написать
    7 500 000 Р98 560 $ или 84 550
    Агент
    +7 (910) 350-15-84
    Начать чат с агентом
    Похожие предложения
    Торговая площадь (23.9 м) - Фото 1
    Торговая площадь (23.9 м) - Фото 2
    • 1/25 эт.
    7 456 000 Р
    Агент
    +7 (982) Показать номер
    Посмотреть контакты
    Торговая площадь (23.9 м) - Фото 1
    Торговая площадь (23.9 м) - Фото 2
    • 1/25 эт.
    7 456 000 Р
    Агент
    +7 (982) Показать номер
    Посмотреть контакты
    Торговая площадь в Ростовская область, Ростов-на-Дону пос. ... - Фото 1
    Торговая площадь в Ростовская область, Ростов-на-Дону пос. ... - Фото 2
    Срочно Без комиссии для покупателя Окупаемость 8 лет Предлагается к продаже тoрговая площaдь на пeрвoм этажe мнoгоквартирнoгo дoмa. Плoщадь помещения составляет 75 кв.м с двумя рaзными залами, пoдходящими пoд paзные инвестиционные проeкты. В помещении...
    • 1/9 эт.
    7 500 000 Р
    Агент
    +7 (989) Показать номер
    Посмотреть контакты
    Торговая площадь в Ставропольский край, Ессентуки Пятигорская ул. (55 ... - Фото 1
    Торговая площадь в Ставропольский край, Ессентуки Пятигорская ул. (55 ... - Фото 2
    Магазин площадью 54.80 кв. м расположен на первой линии улицы Пятигорской в Ессентуках — оживленном районе с высокой проходимостью. Объект находится в собственности, что упрощает юридические процедуры. Помещение уже сдается в аренду стабильно работающему...
    • 1/1 эт.
    7 500 000 Р
    Агент
    +7 (918) Показать номер
    Посмотреть контакты
    Торговая площадь в Башкортостан, Уфа ул. Гоголя, 78 (93 м) - Фото 1
    Торговая площадь в Башкортостан, Уфа ул. Гоголя, 78 (93 м) - Фото 2
    Продается коммерческое помещение площадью 93 кв.м. в новом многофункциональном комплексе на улице Гоголя в историческом центре города. Объект обладает готовой чистовой отделкой, что позволяет начать бизнес в кратчайшие сроки, и подходит для широкого спектра...
    • 1/25 эт.
    7 400 000 Р
    Агент
    +7 (987) Показать номер
    Посмотреть контакты

    Не нашли подходящего объявления?

    Оставьте заявку, и наши риэлторы подберут торговое помещение в районе Каликино

    (0)